
ანა ფირცხალავა - დასაქმების ისტორია
კურსის შესახებ სრული ინფორმაციისთვის გვეწვიე
სალამი, დავამთავრე ხის მხატვრული დამუშავებისა და ავეჯის დიზაინის ფაკულტეტი სამხატვრო აკადემიაში. ვიმუშავე რამდენიმე პროექტზე ინტერიერის დიზაინის მიმართულებითაც. მქონდა გამოცდილება და ცოდნა, თუმცა მინდოდა წინ გადამედგა ნაბიჯი, განმევითარებინა ტექნიკური უნარ-ჩვევები და ხედვა.
გადავხედე რამდენიმე წამყვან კომპანიას, უზომოდ ბევრი კმაყოფილი სტუდენტი ჰყავდა Smart Fish აკადემიას, სილაბუსს რომ გავეცანი, ლექტორის გამოცდილებას, თხრობა-გადმოცემის უნარს, ბევრი აღარ მიმსჯელია არჩევანის გაკეთებაზე.
კურსის გავლასთან დაკავშირებით გადაწყვეტილების მიღებიდან ორ დღეში დავრეგისტრირდი და მალევე დამიკავშირდნენ კიდეც. ყველაფერი დეტალურად ამიხსნეს. მომეწონა, რომ გასაუბრებაზე სვამდნენ კითხვებს ჩემს თავისუფალ დროზე და მზადყოფნაზე კურსის გასავლელად. აქ მკაფიოდ იგრძნობოდა მათი სწორი დამოკიდებულება სწავლების და სტუდენტების მიმართ — არ მქონდა ის განცდა, რომ უბრალოდ პროდუქტს მთავაზობდნენ.
გარდა იმისა, რომ კურსმა სერტიფიკატი და თავიდან ბოლომდე შესრულებული პროექტის მომზადების საშუალება მომცა, ასევე დამიგროვა ძალიან დიდი ცოდნა და გამოცდილება როგორც ტექნიკურ/პრაქტიკულ, ასევე თეორიულ საკითხებში. ვმუშაობდი პროგრამებში, როგორებიცაა AutoCAD და Vray, ხოლო ამ კურსმა და უსაყვარლესმა ლექტორმა თათამ გვასწავლა ArchiCAD და Corona. გავიარეთ ასევე 3Ds Max და Photoshop — ყველა ის პროგრამა, რაც ინტერიერის დიზაინერს სჭირდება.
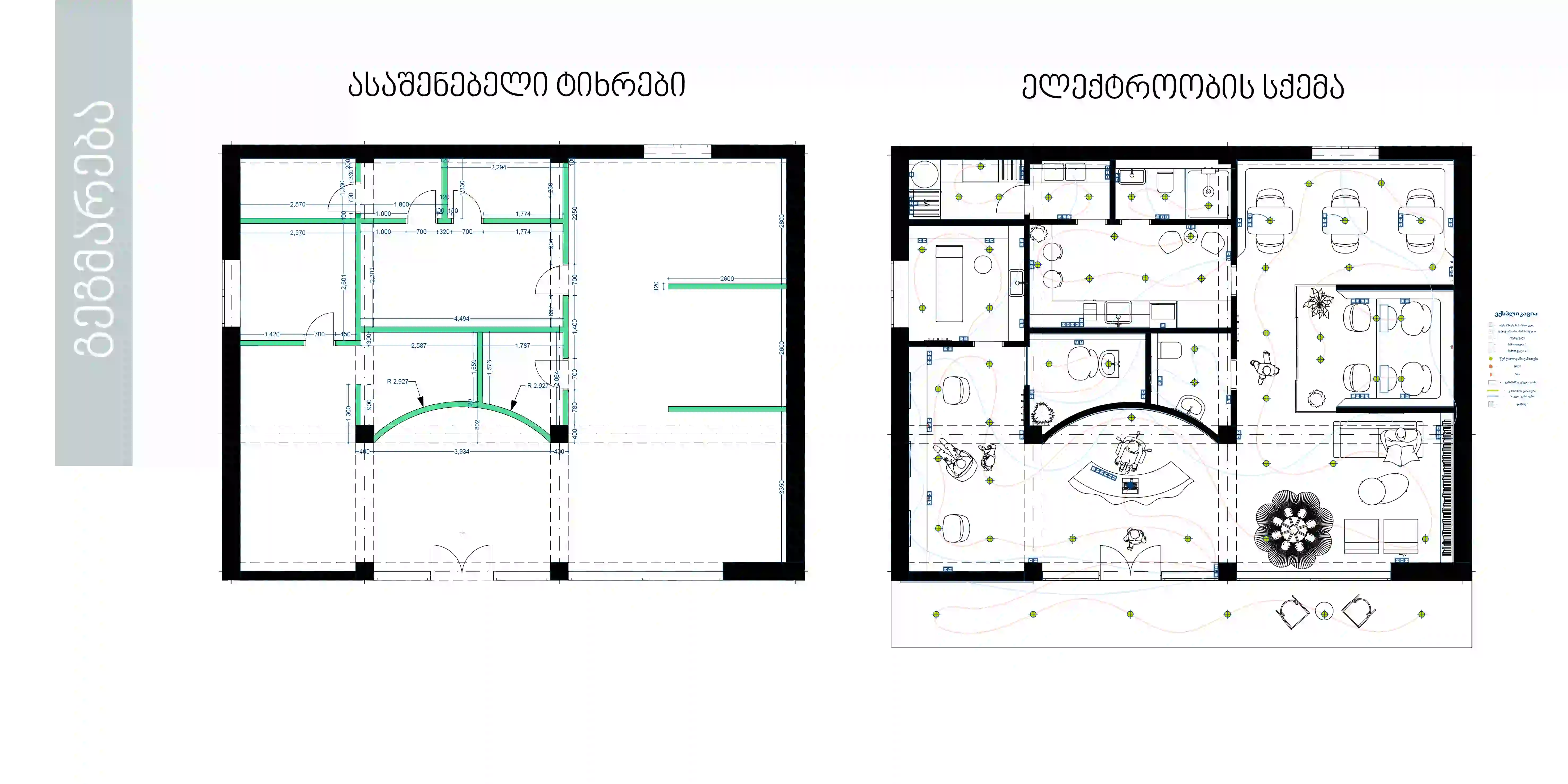
ფინალური პროექტი იყო სილამაზის სალონი ბათუმში, რომელმაც უდიდესი გამოცდილება მომცა. მიუხედავად იმისა, რომ პროექტი საკმაოდ სპეციფიკური იყო და ფაქტობრივად ორჯერ მეტი მოცულობის, ვიდრე საცხოვრებელი ფართები, პროცესით და განსაკუთრებით შედეგებით დიდი სიამოვნება მივიღე.
მინდა აღვნიშნო ისიც, რომ ლექტორი ყოველთვის, ნებისმიერ დროს, ჩვენს გვერდით იყო და გვეხმარებოდა, თუ რაიმე კითხვა ან ტექნიკური ხარვეზი იჩენდა თავს.
ვფიქრობ ყოველი შემდეგი გამოწვევა საინტერესო და აუცილებელია, გამორჩეულად არ მაქვს სივრცე, რომელზეც ვიმუშავებდი, თუმცა დანამდვილებით ვიცი, რომ მხოლოდ საცხოვრებელ ან კომერციულ ფართებზე არ მინდა ფოკუსირება. მირჩევნია სამუშაო მრავალფეროვანი იყოს, ასე უფრო სახალისოა და შედეგიც უკეთესი გამოდის.
კურსის ძლიერი მხარე პირველ რიგში მოწესრიგებული კომუნიკაციით იწყება, როგორც ვერბალური, ასევე, წერილობითი. აკადემიის გუნდი მზად არის ნებისმიერ პრობლემის დროს ხელი შეგიწყოს და დაგეხმაროს.
ლექტორი თათა! გარდა იმისა რომ თბილი და უსაყვარლესია, თავის საქმის ნამდვილი მცოდნე, დაუზარელი,კარგი მთხრობელი ერთი სიტყვით სასწაული გოგოა!
არ შემიძლია არ აღვნიშნო ჯგუფი რომელშიც მოვხვდი იყო სუპერ ადამიანებით დაკომპლექტებული. ძალიან დავახლოვდით კურსის განმავლობაში, ძალიან ვეხმარებოდით ერთმანეთს.
Update: კურსის დაწყებამდე უკვე მქონდა რამდენიმე დასრულებული პროექტი - ვთანამშრომლობდი ერთ-ერთ წამყვან კომპანიასთან და გამოცდილ დიზაინერთან ერთობლივ პროექტზე. თუმცა, დიდი კონკურენციის პირობებში წარმატების მისაღწევად მუდმივი განვითარებაა საჭირო, ამიტომაც გადავწყვიტე დამატებითი კურსის გავლა. არჩევანი Smart Fish-ზე კმაყოფილი სტუდენტების შეფასებების საფუძველზე შევაჩერე. სწორედ კურსის ფარგლებში შექმნილი პროექტი გახდა კომპანია „არქიში“ დასაქმების და პროფესიულ ზრდაში გადადგმული მნიშვნელოვანი ნაბიჯის საფუძველი.

















