
ეკა კერესელიძე - ფინალური პროექტი ინტერიერის დიზაინში
კურსის შესახებ სრული ინფორმაციისთვის გვეწვიე
Მე ვარ ეკა კერესელიძე, 40 წლის. ვარ Პროფესიით არქიტექტორი, მაგრამ ხშირად ვიცვლი ინტერესებს და ვცდილობ დავეუფლო ახალ მიმართულებებს.
ყველაზე მნიშვნელოვანი, რაც შემძინა კურსმა არის თავდაჯერება, რომ შესაძლებელია მცირე დროში აითვისო საკმარისი ცოდნა და შეეჭიდო სამომავლო პროექტებს.
ვისაც სურს უმოკლეს დროში გაეცნოს ინტერიერის დიზაინის ძირითად პრინციპებს, ფერის თეორიას, შეძლოს სივრცის გეგმარებისა და ვიზუალიზაციის შექმნა, ვურჩევდი გაიაროს ეს კურსი, რომელიც იძლევა სრულ ცოდნას პროექტის ყველა ეტაპისთვის.
ფინალური პროექტის ფარგლებში, უნდა შეგვექმნა ყავის ბარისა და მაღაზიის დიზაინი. მუშაობის პროცესში გვქონდა სრული შემოქმედებითი თავისუფლება საკუთარი იდეების წარმოსაჩენად. შესაბამისად, პროცესი იყო სასიამოვნო და დიდი გამოცდილების მომცემი.
სიამოვნებით ვიმუშავებდი როგორც საცხოვრებელი ფართების, ასევე კვების ობიექტების დიზაინზე.
კურსის ძლიერი მხარე არის მისი პროფესიონალური მიდგომა. მასალა ადვილად გასაგებია დამწყებისთვის და ასევე აძლევს მნიშვნელოვან ცოდნას იმ სტუდენტებს, ვისაც უკვე ჰქონია შეხება დიზაინთან. აღსანიშნავია ლექტორის პროფესიაონალიზმი და გადმოცემის უნარი.
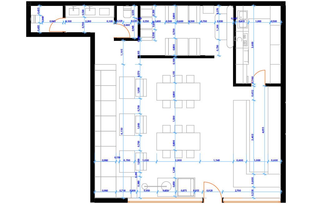
გეგმარება



ფასადი

დარბაზი





ბარი

დეტალები


სველი წერტილი


